++ NEU ++ ZUHAUSE IN DER STADT // ZENTRALE 2-ZIMMER-ALTBAUWOHNUNG NAHE WIEN MITTE UND RADETZKYPLATZ
Willkommen in Ihrer Stadtwohnung im 3. Bezirk!
Diese charmante 2-Zimmer-Wohnung mit ca. 50 m² Wohnfläche befindet sich im 3. Stock eines klassischen Wiener Altbaus aus dem Jahr 1883, nur wenige Gehminuten von Wien Mitte entfernt, einem der wichtigsten städtischen Verkehrsknotenpunkte mit U-Bahn-, S-Bahn-, Bahn- und Flughafenanbindung.
Sie ist die richtige Wahl für Menschen, die urbanes Leben in vollen Zügen genießen möchten: Singles, Paare, Studierende oder für jene, die nach einer zentralen Stadtwohnung suchen.
Die Immobilie
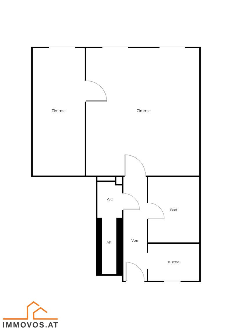
Die Wohnung öffnet sich in einen länglichen Vorraum, von dem rechterhand die kompakte Küche zugänglich ist, funktional, mit Potenzial für individuelle Updates. Gleich danach befinden sich das Badezimmer und das separate WC, beide bequem vom Eingangsbereich aus erreichbar.
Das Badezimmer ist klassisch ausgestattet mit einer Badewanne und bietet zusätzlich einen Waschmaschinenanschluss. Im separaten WC wurde ein ca. 2,5 m² großer Wandnischen-Stauraum geschickt in die Mauer integriert, ideal für Reinigungsutensilien, Haushaltsvorräte oder andere Dinge, die gut verstaut sein wollen, aber nicht im Weg stehen sollen.
Am Ende des Gangs gelangt man in das großzügige, über 25 m² große Wohnzimmer mit Altbauflair und nord-südlicher Ausrichtung. Der Raum bietet Platz für Wohnen, Arbeiten und Essen, und dank seiner Größe auch für kreative Gestaltungsideen. Vom Wohnzimmer führt eine Tür weiter in das etwa 15 m² große Schlafzimmer, ebenfalls zur Straße ausgerichtet und ideal für ruhige Rückzugsmomente im urbanen Alltag.
Die Wohnung ist gepflegt, bedarf aber in Teilen einer leichten Adaptierung, je nach Bedarf.
Ein trockenes, zur alleinigen Nutzung zugeordnetes Kellerabteil bietet praktische Lagerfläche, und ein weiterer Abstellraum direkt gegenüber der Wohnung sorgt für zusätzlichen Stauraum.
Bitte beachten Sie: Die Wohnung befindet sich im 3. Stock eines Gebäudes ohne Lift. Dafür genießen Sie hier klassische Altbau-Substanz, hohe Räume und charmante Details: der Ausblick reicht von oben auf die S-Bahn-Gleise und öffnet sich zur Viaduktgasse hin.
Besonderheiten:
- großzügig geschnittene 2-Zimmer-Wohnung
- Getrennt begehbares Bad mit Badewanne & WM-Anschluss
- separate Küche
- zusätzlicher Abstellraum direkt gegenüber der Wohnung
- Zugeteilter, trockener Kellerraum
- zentrale Lage nur wenige Minuten von Wien Mitte
- Adaptierungspotenzial für Individualisten
Lage
Die Wohnung befindet sich in der Oberen Viaduktgasse 6, nur einen Katzensprung von Wien Mitte entfernt.
Die zentrale Lage bietet direkten Zugang zu U3, U4, S-Bahn, Regionalzügen und dem City Airport Train (CAT). Auch Bus- und Straßenbahnlinien stehen hier in dichtem Takt zur Verfügung, ein urbaner Standort mit perfekter Infrastruktur.
Wien Mitte ist zudem ein wichtiger Einkaufs- und Bürostandort, mit „The Mall“ als Einkaufszentrum, zahlreichen Lokalen, Supermärkten, Dienstleistern und Freizeitangeboten. Auch der Grünraum am Donaukanal ist nicht weit, ideal für Läufe am Wasser oder ein Feierabendgetränk in der Sonne.
Ob als Starterwohnung oder Stadt-Stützpunkt, die Lage spricht für sich.
Kaufpreis:
Der Kaufpreis beläuft sich auf € 244.500,00
Provision: 3% des Kaufpreises + 20% USt.
Für Konsument:innen gilt:
Durch das Inkrafttreten des Fern- und Auswärtsgeschäftegesetzes (FAGG/VRUG) können wir Ihnen erst nach Ihrer Zustimmung zum Verzicht auf die darin festgelegte 14-tägige Rücktrittsfrist bzw. Ihre Bestätigung, dass Sie unser vorzeitiges Tätigwerden wünschen, die Detailunterlagen zu diesem unverbindlichen Immobilienangebot mit Adresse zusenden.
Daher erhalten Sie vorab eine gesonderte Nachricht mit allen Informationen zum FAGG, in der Sie uns diese Zustimmung erteilen können.
Erst nach Erhalt senden wir Ihnen gerne die gewünschten Informationen zu diesem Angebot bzw. geben wir Ihnen die Adresse bekannt, bitte um Verständnis!
Es entstehen Ihnen keine zusätzlichen Kosten durch Ihre erteilte Zustimmung, unser Anspruch auf die vereinbarte Vermittlungsprovision entsteht erst bei einem von uns erfolgreich vermittelten Geschäftsabschluss bzw. bei dessen Rechtswirksamkeit.
Bitte richten Sie ihre schriftliche Anfrage an: knor@immovos.at
Diese charmante 2-Zimmer-Wohnung mit ca. 50 m² Wohnfläche befindet sich im 3. Stock eines klassischen Wiener Altbaus aus dem Jahr 1883, nur wenige Gehminuten von Wien Mitte entfernt, einem der wichtigsten städtischen Verkehrsknotenpunkte mit U-Bahn-, S-Bahn-, Bahn- und Flughafenanbindung.
Sie ist die richtige Wahl für Menschen, die urbanes Leben in vollen Zügen genießen möchten: Singles, Paare, Studierende oder für jene, die nach einer zentralen Stadtwohnung suchen.
Die Immobilie
Die Wohnung öffnet sich in einen länglichen Vorraum, von dem rechterhand die kompakte Küche zugänglich ist, funktional, mit Potenzial für individuelle Updates. Gleich danach befinden sich das Badezimmer und das separate WC, beide bequem vom Eingangsbereich aus erreichbar.
Das Badezimmer ist klassisch ausgestattet mit einer Badewanne und bietet zusätzlich einen Waschmaschinenanschluss. Im separaten WC wurde ein ca. 2,5 m² großer Wandnischen-Stauraum geschickt in die Mauer integriert, ideal für Reinigungsutensilien, Haushaltsvorräte oder andere Dinge, die gut verstaut sein wollen, aber nicht im Weg stehen sollen.
Am Ende des Gangs gelangt man in das großzügige, über 25 m² große Wohnzimmer mit Altbauflair und nord-südlicher Ausrichtung. Der Raum bietet Platz für Wohnen, Arbeiten und Essen, und dank seiner Größe auch für kreative Gestaltungsideen. Vom Wohnzimmer führt eine Tür weiter in das etwa 15 m² große Schlafzimmer, ebenfalls zur Straße ausgerichtet und ideal für ruhige Rückzugsmomente im urbanen Alltag.
Die Wohnung ist gepflegt, bedarf aber in Teilen einer leichten Adaptierung, je nach Bedarf.
Ein trockenes, zur alleinigen Nutzung zugeordnetes Kellerabteil bietet praktische Lagerfläche, und ein weiterer Abstellraum direkt gegenüber der Wohnung sorgt für zusätzlichen Stauraum.
Bitte beachten Sie: Die Wohnung befindet sich im 3. Stock eines Gebäudes ohne Lift. Dafür genießen Sie hier klassische Altbau-Substanz, hohe Räume und charmante Details: der Ausblick reicht von oben auf die S-Bahn-Gleise und öffnet sich zur Viaduktgasse hin.
Besonderheiten:
- großzügig geschnittene 2-Zimmer-Wohnung
- Getrennt begehbares Bad mit Badewanne & WM-Anschluss
- separate Küche
- zusätzlicher Abstellraum direkt gegenüber der Wohnung
- Zugeteilter, trockener Kellerraum
- zentrale Lage nur wenige Minuten von Wien Mitte
- Adaptierungspotenzial für Individualisten
Lage
Die Wohnung befindet sich in der Oberen Viaduktgasse 6, nur einen Katzensprung von Wien Mitte entfernt.
Die zentrale Lage bietet direkten Zugang zu U3, U4, S-Bahn, Regionalzügen und dem City Airport Train (CAT). Auch Bus- und Straßenbahnlinien stehen hier in dichtem Takt zur Verfügung, ein urbaner Standort mit perfekter Infrastruktur.
Wien Mitte ist zudem ein wichtiger Einkaufs- und Bürostandort, mit „The Mall“ als Einkaufszentrum, zahlreichen Lokalen, Supermärkten, Dienstleistern und Freizeitangeboten. Auch der Grünraum am Donaukanal ist nicht weit, ideal für Läufe am Wasser oder ein Feierabendgetränk in der Sonne.
Ob als Starterwohnung oder Stadt-Stützpunkt, die Lage spricht für sich.
Kaufpreis:
Der Kaufpreis beläuft sich auf € 244.500,00
Provision: 3% des Kaufpreises + 20% USt.
Für Konsument:innen gilt:
Durch das Inkrafttreten des Fern- und Auswärtsgeschäftegesetzes (FAGG/VRUG) können wir Ihnen erst nach Ihrer Zustimmung zum Verzicht auf die darin festgelegte 14-tägige Rücktrittsfrist bzw. Ihre Bestätigung, dass Sie unser vorzeitiges Tätigwerden wünschen, die Detailunterlagen zu diesem unverbindlichen Immobilienangebot mit Adresse zusenden.
Daher erhalten Sie vorab eine gesonderte Nachricht mit allen Informationen zum FAGG, in der Sie uns diese Zustimmung erteilen können.
Erst nach Erhalt senden wir Ihnen gerne die gewünschten Informationen zu diesem Angebot bzw. geben wir Ihnen die Adresse bekannt, bitte um Verständnis!
Es entstehen Ihnen keine zusätzlichen Kosten durch Ihre erteilte Zustimmung, unser Anspruch auf die vereinbarte Vermittlungsprovision entsteht erst bei einem von uns erfolgreich vermittelten Geschäftsabschluss bzw. bei dessen Rechtswirksamkeit.
Bitte richten Sie ihre schriftliche Anfrage an: knor@immovos.at
Überblick
Objekt ID:
46908
Bundesland:
Wien
Bezirk:
Wien 3.,Landstraße
Ort:
Wien 3.,Landstraße
Verkehrsanbindung:
1, O, U3, U4, CAT, S-Bahn, 80A, N29
Kosten
Preis:
€ 244.500,00
Betriebskosten (ex. USt):
€ 106,87
sonst. Kosten (ex. USt):
€ 19,46
mtl. Kosten (inkl. USt.):
€ 137,02
Provision:
3% (zzgl. 20% USt)
Flächen
Wohnfläche ca.:
50,00 m²
Detaildaten
Verfügbar ab:
ab sofort
Baujahr:
1883
Zimmer:
2
Geschosse:
3
Stockwerk:
3
Bäder:
1
Anzahl WCs:
1
Alter:
Altbau
Heizung:
Etagenheizung
Befeuerung:
Gas
Heizwärmebedarf:
445,32 kWH/m²/Jahr
Boden:
Parkett
Boden:
Fliesen
Ausstattung:
Abstellraum
Einbauküche
Isolierfenster




