Cottagelage - barrierefrei - Grünblick rundum! Sehr feine 2 Zimmer Altbauwohnung
Diese Cottage-Wohnlage besticht durch die ruhige und grüne Umgebung in gepflegter Nachbarschaft und lockerer Bebauung mit Mehrfamilienhäusern, Villen und Altbaumbestand.
Unweit des Gersthofer Zentrums genießen Sie hier den Ausblick direkt ins Grüne und gleichzeitig den Vorteil einer ausgezeichneten Infrastruktur nur wenige Minuten Fußweg entfernt.
Im Gersthofer Zentrum rund um die S-Bahn-Station mit ihren zahlreichen Geschäften bietet sich alles Nötige für Ihren täglichen Einkauf. Kulinarisch sind alle gängigen Richtungen vertreten, vom frz. Bistro über das klassische Cafe bis zur Wiener Küche. Mehrere Supermärkte, Konditorei u. Bäckerei, Apotheke, Drogerie-Märkte, Fachgeschäfte, Fleischerei, mehrere Arztpraxen u. ein Diagnose-Zentrum, Boutique, Kosmetikerin, Blumenladen, uvm. warten ihren Kunden mit einem hochwertigen Angebot auf.
Die Busstationen der Linie 10A in beide Richtungen erreichen Sie in lediglich 1 min. Nur 1 Station bis zum Gersthofer Platz oder ein kurzer Fußweg.
Das Wohngebäude von 1932 mit funktionalem Design und jeweils 3 Wohnungen pro Etage wurde 2011 im Zuge eines Dachgeschoß-Ausbaus in den Allgemeinbereichen saniert. Ein barrierefrei erreichbarer 4-5 Personen-Lift wurde errichtet u. die Fassade gedämmt. Trockener Keller im EG mit neu geschaffenen Abteilen (übl. Alugitter-Abtrennungen, Estrich). 2 Fahrrad-Abstellbereiche im versperrten Hauskeller vorhanden.
Als großes Plus ist der im Altbau nicht alltägliche Zugang zur Liegenschaft, ins Gebäude u. zum Lift ohne Zwischenstufen zu erwähnen: Eine sanft abfallende Rampe führt zum Haus, modernes u. breites Aluminium-Portal mit Gegensprechanlage, Lift ab dem EG zu den einzelnen Etagen ohne Hürden wie Stufen o.ä. u. groß genug für den Zutritt mit Gehhilfe.
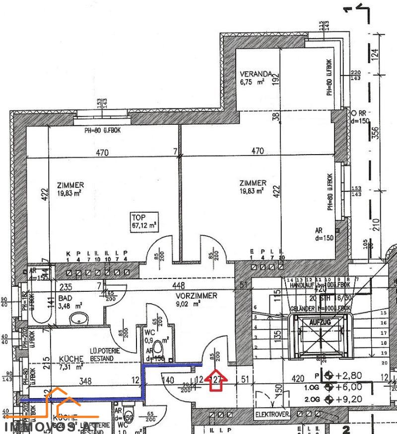
Die beiden direkt aneinander grenzenden Wohnungen im 1. Stock weisen das gleiche Raumangebot auf:
Jeweils 2 Zimmer, zentraler Vorraum, sep. Küche mit Tageslicht, Bad mit Wanne, Waschplatz u. Außenfenster, sep. WC.
Noch originale schöne Eiche-Parkettböden, moderne Kunststoff-Fenster mit Isolierverglasung, Küchenboden mit PVC-Belägen, Bäder noch zeitgemäß und dezent. Angenehme Raumhöhe von ca. 2,7 m.
Die Zusammenlegung der Wohnungen wäre mit überschaubarem Aufwand möglich.
Da die WE-Begründung erst erfolgt, muss aus diesem Grund keine Änderung vorgenommen oder Zustimmung eingeholt werden.
Der Anbau von Balkonen ist möglich, hierzu ist lediglich die verkäuferseitige Zustimmung erforderlich, was den Ablauf rasch u. unkompliziert gestaltet. Der Garten rundum wird von einer Mieterin liebevoll gepflegt, er darf von den Eignern u. Mietern gemeinsam genützt werden.
Die Wohnungen werden als Wohnungseigentumsobjekte veräußert, sie können einzeln oder gemeinsam erworben werden. Bei WE-Begründung erfolgt die Erstellung eines zeitgemäßen WE-Vertrages und des Nutzwertgutachtens durch den Verkäufer bzw. den WE-Organisator.
Nach erfolgter Begründung kommen zu den verkehrsüblichen Betriebskosten die Beiträge zur Rücklage hinzu, die aufgrund gesetzlicher Erfordernisse in Höhe von dzt. EUR 1,06 pro m2 zu bilden ist (valorisiert).
Die Heizung erfolgt jeweils über Gas-Kombi-Thermen älterer Bauart mit Radiatoren, eine Erneuerung ist zu empfehlen. Die Parkettböden könnten abgeschliffen u. für ein helleres Erscheinungsbild neu lackiert werden.
Die Küchen entsprechend nicht mehr dem zeitgemäßen Komfort, ein Austausch wäre anzuraten.
Platz für eine Küche in U-Form mit mehr Arbeitsfläche ist ausreichend vorhanden.
Modernisierung von Bad u. sep. WC (mit Tiefspüler) erforderlich.
Wohnung 1:
ca. 67 m2 Wohnfläche, beide Zimmer zur Gartenseite ausgerichtet, Belichtung bzw. Fenster zu 2 Seiten, gemütlicher Erker im Wohnraum, Küche mit Außenfenster u. zweckmäßiger, Einbauküchenzeile, funktionales hell verfliestes Bad mit Wanne, Waschplatz u. Gas-Kombi-Therme für Heizung/Warmwasser; sep. WC;
Begehrter Kaufpreis: VB EUR 419.000,--
Wohnung 2:
ca. 60 m2 Nutzfläche, 2 Zimmer mit Ausrichtung zum Vorgarten/zur Gasse; Küche sep. mit Einbauküchenzeile, funktionales Bad mit Wanne, Waschplatz, Kombi-Therme, sep. WC, zentraler Vorraum; Heizung mittels Radiatoren, Fischgrät-Parkettböden in den Zimmern
Begehrter Kaufpreis: VB 399.960,--
Zu den jeweils erzielten Kaufpreisen kommt unser Vermittlungshonorar von 3 % + 20 USt. (brutto 3,6 %) hinzu sowie die bei Kaufabwicklung üblichen Kaufnebenkosten. Wir weisen darauf hin, dass nun unter bestimmten Voraussetzungen die Eintragungsgebühr in Höhe von 1,1 % nicht zum Tragen kommt.
Wenn Sie in grüner u. gleichzeitig zentraler Gersthofer Lage wohnen möchten, lohnt sich der Blick auf dieses Angebot! Ihr Kontakt für weitere Informationen oder einen Termin: Elisabeth Preissl, Tel. 0676 474 59 29
Durch die laufende Geschäftstätigkeit für den Abgeber dürfen wir auf das wirtschaftliche Naheverhältnis zum Abgeber hinweisen. Es bestehen jedoch keine personellen oder gesellschaftsrechtlichen Verflechtungen.
Wir sind als Doppelmakler tätig.
Für KonsumentInnen gilt:
Durch das Inkrafttreten des Fern- und Auswärtsgeschäftegesetzes (FAGG/VRUG) können wir Ihnen erst nach Ihrer Zustimmung zum Verzicht auf die darin festgelegte 14-tägige Rücktrittsfrist bzw. Ihre Bestätigung, dass Sie unser vorzeitiges Tätigwerden wünschen, die Detailunterlagen zu diesem unverbindlichen Immobilienangebot mit Adresse zusenden.
Daher erhalten Sie vorab eine gesonderte Nachricht mit allen Informationen zum FAGG, in der Sie uns diese Zustimmung erteilen können.
Erst nach Erhalt senden wir Ihnen gerne die gewünschten Informationen zu diesem Angebot bzw. geben wir Ihnen die Adresse bekannt, bitte um Verständnis!
Es entstehen Ihnen keine zusätzlichen Kosten durch Ihre erteilte Zustimmung, unser Anspruch auf die vereinbarte Vermittlungsprovision entsteht erst bei einem von uns erfolgreich vermittelten Geschäftsabschluss bzw. bei dessen Rechtswirksamkeit.
Unweit des Gersthofer Zentrums genießen Sie hier den Ausblick direkt ins Grüne und gleichzeitig den Vorteil einer ausgezeichneten Infrastruktur nur wenige Minuten Fußweg entfernt.
Im Gersthofer Zentrum rund um die S-Bahn-Station mit ihren zahlreichen Geschäften bietet sich alles Nötige für Ihren täglichen Einkauf. Kulinarisch sind alle gängigen Richtungen vertreten, vom frz. Bistro über das klassische Cafe bis zur Wiener Küche. Mehrere Supermärkte, Konditorei u. Bäckerei, Apotheke, Drogerie-Märkte, Fachgeschäfte, Fleischerei, mehrere Arztpraxen u. ein Diagnose-Zentrum, Boutique, Kosmetikerin, Blumenladen, uvm. warten ihren Kunden mit einem hochwertigen Angebot auf.
Die Busstationen der Linie 10A in beide Richtungen erreichen Sie in lediglich 1 min. Nur 1 Station bis zum Gersthofer Platz oder ein kurzer Fußweg.
Das Wohngebäude von 1932 mit funktionalem Design und jeweils 3 Wohnungen pro Etage wurde 2011 im Zuge eines Dachgeschoß-Ausbaus in den Allgemeinbereichen saniert. Ein barrierefrei erreichbarer 4-5 Personen-Lift wurde errichtet u. die Fassade gedämmt. Trockener Keller im EG mit neu geschaffenen Abteilen (übl. Alugitter-Abtrennungen, Estrich). 2 Fahrrad-Abstellbereiche im versperrten Hauskeller vorhanden.
Als großes Plus ist der im Altbau nicht alltägliche Zugang zur Liegenschaft, ins Gebäude u. zum Lift ohne Zwischenstufen zu erwähnen: Eine sanft abfallende Rampe führt zum Haus, modernes u. breites Aluminium-Portal mit Gegensprechanlage, Lift ab dem EG zu den einzelnen Etagen ohne Hürden wie Stufen o.ä. u. groß genug für den Zutritt mit Gehhilfe.
Die beiden direkt aneinander grenzenden Wohnungen im 1. Stock weisen das gleiche Raumangebot auf:
Jeweils 2 Zimmer, zentraler Vorraum, sep. Küche mit Tageslicht, Bad mit Wanne, Waschplatz u. Außenfenster, sep. WC.
Noch originale schöne Eiche-Parkettböden, moderne Kunststoff-Fenster mit Isolierverglasung, Küchenboden mit PVC-Belägen, Bäder noch zeitgemäß und dezent. Angenehme Raumhöhe von ca. 2,7 m.
Die Zusammenlegung der Wohnungen wäre mit überschaubarem Aufwand möglich.
Da die WE-Begründung erst erfolgt, muss aus diesem Grund keine Änderung vorgenommen oder Zustimmung eingeholt werden.
Der Anbau von Balkonen ist möglich, hierzu ist lediglich die verkäuferseitige Zustimmung erforderlich, was den Ablauf rasch u. unkompliziert gestaltet. Der Garten rundum wird von einer Mieterin liebevoll gepflegt, er darf von den Eignern u. Mietern gemeinsam genützt werden.
Die Wohnungen werden als Wohnungseigentumsobjekte veräußert, sie können einzeln oder gemeinsam erworben werden. Bei WE-Begründung erfolgt die Erstellung eines zeitgemäßen WE-Vertrages und des Nutzwertgutachtens durch den Verkäufer bzw. den WE-Organisator.
Nach erfolgter Begründung kommen zu den verkehrsüblichen Betriebskosten die Beiträge zur Rücklage hinzu, die aufgrund gesetzlicher Erfordernisse in Höhe von dzt. EUR 1,06 pro m2 zu bilden ist (valorisiert).
Die Heizung erfolgt jeweils über Gas-Kombi-Thermen älterer Bauart mit Radiatoren, eine Erneuerung ist zu empfehlen. Die Parkettböden könnten abgeschliffen u. für ein helleres Erscheinungsbild neu lackiert werden.
Die Küchen entsprechend nicht mehr dem zeitgemäßen Komfort, ein Austausch wäre anzuraten.
Platz für eine Küche in U-Form mit mehr Arbeitsfläche ist ausreichend vorhanden.
Modernisierung von Bad u. sep. WC (mit Tiefspüler) erforderlich.
Wohnung 1:
ca. 67 m2 Wohnfläche, beide Zimmer zur Gartenseite ausgerichtet, Belichtung bzw. Fenster zu 2 Seiten, gemütlicher Erker im Wohnraum, Küche mit Außenfenster u. zweckmäßiger, Einbauküchenzeile, funktionales hell verfliestes Bad mit Wanne, Waschplatz u. Gas-Kombi-Therme für Heizung/Warmwasser; sep. WC;
Begehrter Kaufpreis: VB EUR 419.000,--
Wohnung 2:
ca. 60 m2 Nutzfläche, 2 Zimmer mit Ausrichtung zum Vorgarten/zur Gasse; Küche sep. mit Einbauküchenzeile, funktionales Bad mit Wanne, Waschplatz, Kombi-Therme, sep. WC, zentraler Vorraum; Heizung mittels Radiatoren, Fischgrät-Parkettböden in den Zimmern
Begehrter Kaufpreis: VB 399.960,--
Zu den jeweils erzielten Kaufpreisen kommt unser Vermittlungshonorar von 3 % + 20 USt. (brutto 3,6 %) hinzu sowie die bei Kaufabwicklung üblichen Kaufnebenkosten. Wir weisen darauf hin, dass nun unter bestimmten Voraussetzungen die Eintragungsgebühr in Höhe von 1,1 % nicht zum Tragen kommt.
Wenn Sie in grüner u. gleichzeitig zentraler Gersthofer Lage wohnen möchten, lohnt sich der Blick auf dieses Angebot! Ihr Kontakt für weitere Informationen oder einen Termin: Elisabeth Preissl, Tel. 0676 474 59 29
Durch die laufende Geschäftstätigkeit für den Abgeber dürfen wir auf das wirtschaftliche Naheverhältnis zum Abgeber hinweisen. Es bestehen jedoch keine personellen oder gesellschaftsrechtlichen Verflechtungen.
Wir sind als Doppelmakler tätig.
Für KonsumentInnen gilt:
Durch das Inkrafttreten des Fern- und Auswärtsgeschäftegesetzes (FAGG/VRUG) können wir Ihnen erst nach Ihrer Zustimmung zum Verzicht auf die darin festgelegte 14-tägige Rücktrittsfrist bzw. Ihre Bestätigung, dass Sie unser vorzeitiges Tätigwerden wünschen, die Detailunterlagen zu diesem unverbindlichen Immobilienangebot mit Adresse zusenden.
Daher erhalten Sie vorab eine gesonderte Nachricht mit allen Informationen zum FAGG, in der Sie uns diese Zustimmung erteilen können.
Erst nach Erhalt senden wir Ihnen gerne die gewünschten Informationen zu diesem Angebot bzw. geben wir Ihnen die Adresse bekannt, bitte um Verständnis!
Es entstehen Ihnen keine zusätzlichen Kosten durch Ihre erteilte Zustimmung, unser Anspruch auf die vereinbarte Vermittlungsprovision entsteht erst bei einem von uns erfolgreich vermittelten Geschäftsabschluss bzw. bei dessen Rechtswirksamkeit.
Überblick
Objekt ID:
46425
Bundesland:
Wien
Bezirk:
Wien 18.,Währing
Ort:
Wien 18.,Währing
Lage:
nahe beim Gersthofer Zentrum
Verkehrsanbindung:
S-45 Gersthof, Busse 10A u. 42A, Linien 40, 41, 9
Kosten
Preis:
€ 419.000,00
Provision:
3 % vom Kaufpreis zzgl. 20 % USt.
Flächen
Wohnfläche ca.:
67,00 m²
Kellerfläche ca:
1,50 m²
Detaildaten
Verfügbar ab:
ab sofort
Baujahr:
1932
Zimmer:
2
Geschosse:
4
Stockwerk:
1
Bäder:
1
Anzahl WCs:
1
Alter:
Altbau
Heizung:
Etagenheizung
Befeuerung:
Gas
Heizwärmebedarf:
39,14 kWH/m²/Jahr
fGEE:
1,07
Boden:
Parkett
Boden:
Fliesen
Ausstattung:
Barrierefrei
Einbauküche
Lift
Keller
Kabel oder Sat TV
Fahrradraum
Isolierfenster
Gartennutzung
Kamin




